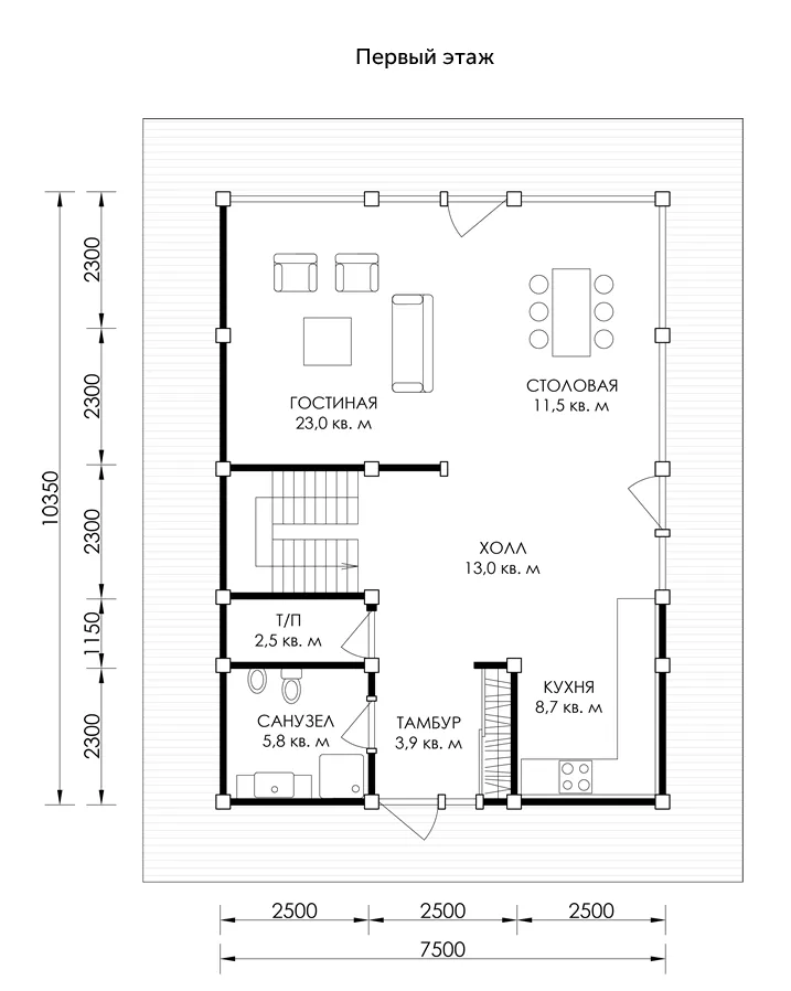
БАЗОВАЯ КОМПЛЕКТАЦИЯ С ТЁПЛЫМ КОНТУРОМ:
Домокомплект из клееной изготовленный с применением клеевых систем AkzoNobel: обвязочный брус в мм, стойки 180х200 в мм, прогоны 140х280 в мм, 180х200 в мм, 180х280 в мм
Комплект клееных балок перекрытия 80х180 в мм, 140х160 в мм для двух этажей
Комплект клееных стропил 140х240 в мм
Заполнение стен, перекрытий, кровли PIR панелями. Толщина PIR панелей в стенах — 80 мм, в перекрытии пола первого этажа — 100 мм, в кровле — 120 мм
Панорамное остекление фасада двухкамерными энергоэффективными стеклопакетами: наружное стекло — закаленное солнцезащитное, внутреннее — закаленное ударопрочное низкоэмиссионное
Крепежные и расходные материалы для сборки домокомплекта







